Gepflegtes Einfamilienhaus mit Kaminofen, großem Grundstück und Doppelgarage in Aurich Egels
329.000,00 €

Ihr Ansprechpartner für dieses Objekt:
Holger Freerks
Tel. 04950 - 98 766 46
OBJEKT NR.: FF 151 KR
(BITTE STETS ANGEBEN)
Adresse:
26605, Aurich, Lower Saxony, Germany
VK - PREIS
329.000,00 €
Objekt Status: AKTIV
*** Alle angegebenen Maßangaben sind ca. Werte und können leicht Abweichen ***
GRUNDDATEN

Grundstück
1.497 qm.

Wohnfläche
235 qm.

Baujahr
1963/1987

Garage / Carport
2 / --

Zimmer
7

Bäder
2
Anzahl Zimmer:
7
PKW Stellplätze:
8
Anzahl Etagen:
2
Bezugsfrei ab:
Nach Vereinbarung
Maklerprovision:
Die Vermittlungsprovision für das Objekt FF151KR von 2,98%, inklusive 19% Mehrwertsteuer, ist vom Käufer nach notarieller Beurkundung zu entrichten. Eine entsprechende Vereinbarung wurde ebenfalls mit dem Verkäufer getroffen.
Angaben zum Energieausweis
(wenn vorhanden)
Verbrauchsausweis
Angaben EnEV
Angaben gemäß §§ 79 ff. des GEG:
Baujahr Gebäude 1963
Baujahr Wärmeerzeuger 2017
Energieträger Gas
Energieverbrauchsausweis
Energiebedarf 122 kWh
EEK D.
OBJEKTBESCHREIBUNG
Gepflegtes Einfamilienhaus mit Kaminofen, großem Grundstück und Doppelgarage in Aurich Egels
Dieses großzügige und gepflegte Einfamilienhaus aus dem Jahr 1963 mit Anbau 1987, befindet sich in Aurich-Egels und bietet mit seinen ca. 235 m² Wohnfläche und 7 Zimmern viel Platz für individuelles Wohnen. Das weitläufige Grundstück von 1.497 m² lädt zum Entspannen ein. Eine Doppelgarage bietet ausreichend Stellfläche, während die vorhandene 6 kWh Photovoltaikanlage ohne Speicher nachhaltige Energie liefert. Der Kaminofen im Wohnzimmer sorgt für eine gemütliche Atmosphäre, und eine Einbauküche ist bereits vorhanden.
Das Haus befindet sich in einem gepflegten Zustand, das Badezimmer im Erdgeschoss sollte jedoch noch saniert werden. Nach einigen Renovierungsarbeiten, wie Tapezieren und eventuell neuen Bodenbelägen, bietet diese Immobilie ein ideales Zuhause für Familien oder Paare, die viel Platz und ein schönes Wohnumfeld suchen. Zusätzlich verfügt das Haus über einen Teilkeller mit zwei Räumen, der zusätzlichen Stauraum bietet.
Raumaufteilung und Flächen:
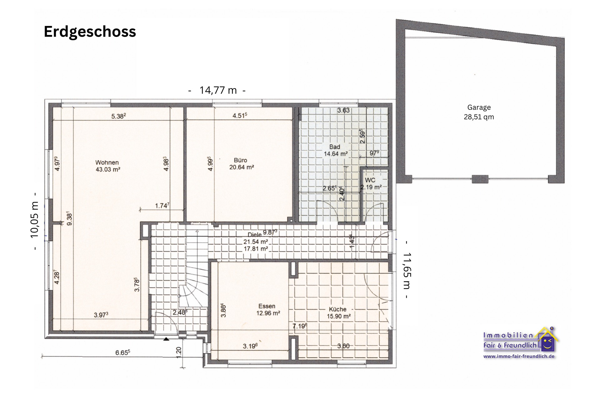
Erdgeschoss:
• Wohnzimmer: 43,03 m²
• Büro: 20,64 m²
• Küche: 15,90 m²
• Esszimmer: 12,96 m²
• Badezimmer: 14,64 m² (Sanierung erforderlich)
• Gäste-WC: 2,19 m²
• Diele: 21,54 m²
Obergeschoss:
• Schlafzimmer: 14,13 m²
• Ankleide: 17,09 m²
• Flur: 12,67 m²
• Abstellraum: 4,86 m²
• Badezimmer: 5,93 m²
• Kinderzimmer 1: 32,67 m²
• Kinderzimmer 2: 18,98 m²
Nebengebäude
• Doppelgarage: 28,51 m²
Das Erdgeschoss besticht durch eine großzügige und durchdachte Raumaufteilung, die ein angenehmes Wohngefühl vermittelt. Der zentrale Mittelpunkt ist das geräumige Wohnzimmer, das mit großen Fenstern für viel Tageslicht sorgt und einen Kaminofen beherbergt. Dieser schafft eine behagliche Atmosphäre und lädt an kühleren Tagen zum Entspannen ein. Direkt angrenzend befindet sich das separate Esszimmer, das genügend Platz für einen großen Esstisch bietet und somit ideal für gemeinsame Mahlzeiten oder gesellige Abende geeignet ist.
Die angrenzende Küche ist großzügig geschnitten und mit einer funktionalen Einbauküche ausgestattet. Sie bietet ausreichend Platz für Kochutensilien und Arbeitsflächen, sodass hier kulinarische Ideen bestens umgesetzt werden können.
Zusätzlich befindet sich im Erdgeschoss ein weiteres Zimmer, das flexibel als Büro, Gästezimmer oder Hobbyraum genutzt werden kann. Das Badezimmer ist sanierungsbedürftig, verfügt jedoch über eine Badewanne, die nach einer Modernisierung für entspannende Wellnessmomente sorgen kann. Ein separates Gäste-WC bietet zusätzlichen Komfort für Besucher. Der einladende Dielenbereich verbindet alle Räume auf harmonische Weise und sorgt für einen angenehmen Empfang.
Das Obergeschoss bietet viel Platz und Privatsphäre für die ganze Familie. Zwei großzügige Kinderzimmer bieten genügend Raum für individuelle Gestaltungsmöglichkeiten und schaffen eine angenehme Rückzugsmöglichkeit für den Nachwuchs. Das geräumige Elternschlafzimmer punktet mit einer direkten Verbindung zur angrenzenden Ankleide, die zusätzlichen Stauraum für Kleidung und Accessoires bietet.
Ein weiterer Abstellraum sorgt für praktischen Stauraum für Haushaltsgegenstände. Der zentrale Flur verbindet alle Räume miteinander und sorgt für eine angenehme Wohnatmosphäre.
Das Badezimmer im Obergeschoss ist funktional ausgestattet und verfügt über eine Dusche, ein Waschbecken sowie ein WC. Somit bietet es allen Bewohnern des Hauses eine praktische und komfortable Nutzung.
Dank der durchdachten Raumaufteilung ist das Obergeschoss der ideale Rückzugsort für die Familie und bietet sowohl ausreichend Platz als auch eine angenehme Wohnqualität.
Ausstattungsmerkmale:
• Doppelgarage und ca. 8 PKW Stellplätze
• Kaminofen im Wohnzimmer für gemütliche Atmosphäre
• 6 kWh Photovoltaikanlage ohne Speicher
• Einbauküche vorhanden
• Großes Grundstück mit vielseitigen Nutzungsmöglichkeiten
• Zwei Badezimmer, eines sanierungsbedürftig, eines mit Dusche
• Gäste-WC im Erdgeschoss
• Teilkeller mit zwei Räumen für zusätzlichen Stauraum
• Helle und großzügige Räume mit optimaler Aufteilung
• Elternschlafzimmer mit angrenzender Ankleide
• Flexibles Büro-/Gästezimmer im Erdgeschoss
• Großzügiger Flur- und Dielenbereich
• Gasbrennwertheizung der Marke Wolf von 2017
• Fußbodenerwärmung in Bad und Küche
• Ausbau Dachterrasse möglich
• Dach von 1987 mit Wärmedämmung
• 2fach verglaste Kunststofffenster mit Rollläden
Mit nur wenigen Renovierungsarbeiten lässt sich dieses Haus in eine wahre Wohlfühloase verwandeln. Es bietet eine ideale Kombination aus großzügigem Wohnraum, durchdachter Aufteilung und einer attraktiven Lage. Lassen Sie sich diese Gelegenheit nicht entgehen und vereinbaren Sie noch heute einen Besichtigungstermin!
Angaben gemäß §§ 79 ff. des GEG:
Baujahr Gebäude 1963, Baujahr Wärmeerzeuger 2017, Energieträger Gas, Energieverbrauchsausweis, Energiebedarf 122 kWh, EEK D.
LAGE
Aurich-Egels ist ein attraktiver Stadtteil von Aurich, der durch seine ruhige und familienfreundliche Umgebung besticht. Die Lage verbindet eine idyllische Wohnatmosphäre mit einer hervorragenden Infrastruktur. Einkaufsmöglichkeiten, Schulen, Kindergärten und medizinische Einrichtungen sind in wenigen Minuten erreichbar. Zudem sorgt eine gute Verkehrsanbindung für schnelle Wege in die Auricher Innenstadt sowie in die umliegenden Ortschaften.
Naturliebhaber profitieren von zahlreichen Spazier- und Radwegen in der Umgebung, während Sport- und Freizeitangebote für eine abwechslungsreiche Freizeitgestaltung sorgen. Aurich-Egels ist somit ein idealer Wohnort für Familien, Pendler und alle, die die Vorzüge einer gut angebundenen, aber dennoch ruhigen Wohnlage genießen möchten.
SONSTIGES
Für den attraktiven Preis von nur 329.000 Euro könnte dieses Haus direkt nach Absprache Ihr neues Domizil werden.
Die Vermittlungsgebühr beträgt 2,98% des Kaufpreises (inklusive 19% Mehrwertsteuer) und wird vom Käufer nach der notariellen Beurkundung entrichtet. Ein identischer Maklervertrag wurde ebenfalls mit dem Verkäufer abgeschlossen.
Sollten Sie Unterstützung bei der Finanzierung benötigen, stelle ich Ihnen gerne einen qualifizierten Berater zur Seite. Weitere Informationen finden Sie auf unserer Partnerseite www.immo-fair-freundlich.de.
Zögern Sie nicht, einen unverbindlichen Besichtigungstermin mit mir zu vereinbaren!
Ihr Ansprechpartner ist Herr Holger Freerks, erreichbar unter der
Telefonnummer 04950 / 98 766 46.
Die interne Anbieter-Objekt-Nummer dieses Angebots lautet: FF 151 KR
Bitte teilen Sie uns bei einer Kontaktaufnahme per E-Mail Ihre Adresse und eine Telefonnummer mit, unter der Sie tagsüber erreichbar sind. Vielen Dank für Ihr Verständnis.
Wenn Sie uns telefonisch kontaktieren, nennen Sie bitte die interne Anbieter-Objekt-Nummer. FF 151 KR. Auf diese Weise können wir Ihnen so schnell wie möglich mit relevanten Informationen weiterhelfen. Herzlichen Dank!
Sie finden weitere attraktive Immobilienangebote auf unserer Webseite www.immo-fair-freundlich.de.
OBJEKTANFRAGE
Bei Fragen Rund um diese Immobilie, kontaktieren Sie uns. Geben Sie bitte immer die richtige Objekt Nr. an.




