Modernisiertes Einfamilienhaus mit PV-Anlage, Wärmepumpe & modernem Komfort in Papenburg Obenende
339.000,00 €

OBJEKT NR.: FF 251 WO
(BITTE STETS ANGEBEN)
Adresse:
26871, Papenburg, Lower Saxony, Germany
VK - PREIS
339.000,00 €
Objekt Status: AKTIV
*** Alle angegebenen Maßangaben sind ca. Werte und können leicht Abweichen ***
GRUNDDATEN

Grundstück
731 qm.

Wohnfläche
165 qm.

Baujahr
1981

Garage / Carport
1 / --

Zimmer
8

Bäder
1
PKW Stellplätze:
5
Anzahl Etagen:
2
Bezugsfrei ab:
nach Vereinbarung
Maklerprovision:
Die Vermittlungsgebühr beträgt 2,98% des Kaufpreises für das Objkekt FF251WO (inklusive 19% Mehrwertsteuer) und wird vom Käufer nach der notariellen Beurkundung entrichtet. Ein identischer Maklervertrag wurde ebenfalls mit dem Verkäufer abgeschlossen.
Angaben zum Energieausweis
(wenn vorhanden)
Verbrauchsausweis
Angaben EnEV
Angaben gemäß §§ 79 ff. des GEG: Baujahr Gebäude 1981 Baujahr Wärmeerzeuger 2010 Energieträger Gas Energieverbrauchsausweis Energiebedarf 61,7 kWh EEK B.
OBJEKTBESCHREIBUNG
Modernisiertes Einfamilienhaus mit PV-Anlage, Wärmepumpe& modernem Komfort in Papenburg Obenende
Willkommen in Ihrem neuen Zuhause! Dieses charmante Einfamilienhaus aus dem Jahr 1981 wurde in den letzten Jahren umfangreich modernisiert und überzeugt durch seine Kombination aus klassischem Klinkerbau, moderner Technik und großzügigem Wohnkomfort. Auf einer Wohnfläche von rund 165 m² bietet das Haus insgesamt acht Zimmer, verteilt auf zwei Etagen – ideal für Familien mit Platzbedarf, Homeoffice oder Gäste. Das Grundstück mit etwa 731 m² Fläche ist pflegeleicht angelegt und grenzt an eine grüne Umgebung, die Ruhe und Erholung verspricht.
Mit seiner hervorragenden Ausstattung erfüllt dieses Objekt alle Ansprüche an zeitgemäßes, energieeffizientes Wohnen: Eine Wärmepumpe der Marke Wolf (Einbau im Dezember 2025) sorgt künftig für nachhaltige Heiztechnik, ergänzt durch eine 10 kWp Photovoltaikanlage mit 10 kWh Speicher sowie ein zusätzliches Balkonkraftwerk mit 1,4 kWp und 1,6 kWh Speicher. Die neuen 3fach verglasten Kunststofffenster (2022), ein vollständig gedämtes Dach (2024), moderne Elektroinstallation mit Kippschaltern, Glasfaseranschluss, eine Einzelgarage, fünf Stellplätze und eine überdachte Terrasse runden das Angebot ab. Dieses Haus bietet somit alles, was ein modernes Familienleben in ruhiger und naturnaher Lage von Papenburg-Obenende ausmacht.
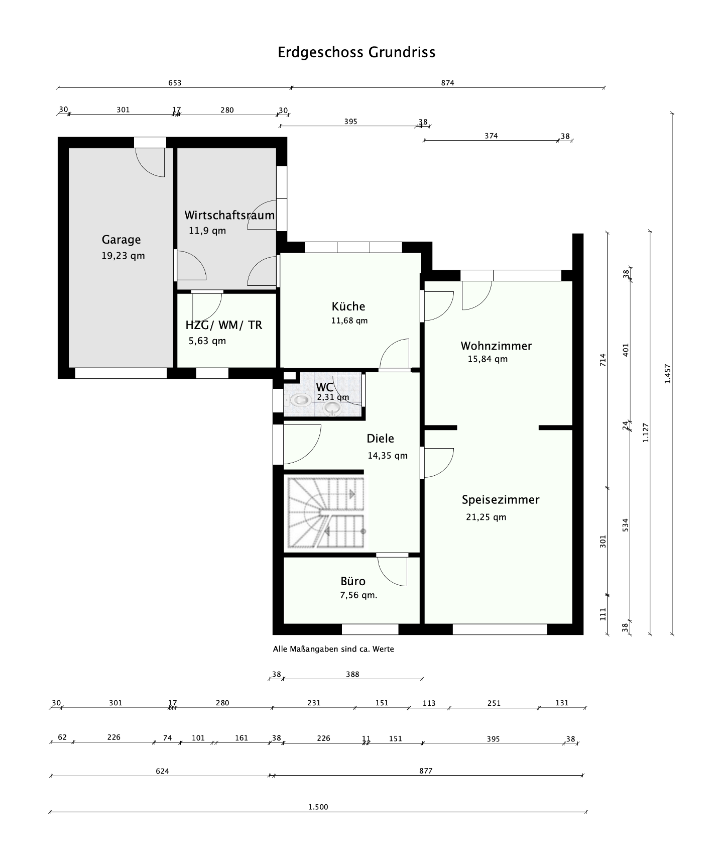
Raumaufteilung und Flächen:
Erdgeschoss
• Diele (14,35 m²) – zentraler Eingangsbereich mit direktem Zugang zu allen Räumen
• Wohnzimmer (15,84 m²) – hell, mit großem Fenster und Zugang zur Terrasse
• Speisezimmer / Esszimmer (21,25 m²) – großzügig, ideal für Familienessen
• Küche (11,68 m²) – funktional geschnitten, angrenzend an HWR und Garage
• Büro / Gästezimmer (7,56 m²) – perfekt für Homeoffice oder Gäste
• Gäste-WC (2,31 m²)
• Hauswirtschaftsraum / Waschraum (11,9 m²) – direkter Zugang von der Küche
• Heizung / Technikraum (5,63 m²) – angrenzend an den Hauswirtschaftsraum
• Garage (19,23 m²) – mit Innentür zum Haus
Dachgeschoss
• Flur (10,29 m²) – zentraler Verteiler zu allen Schlafräumen
• Elternschlafzimmer (13,86 m²) – mit Zugang zum Balkon
• Ankleidezimmer (5,39 m²) – direkt am Elternschlafzimmer
• Kind I (10,07 m²) – heller, gut geschnittener Raum
• Kind II (6,25 m²) – ideal als Kinder- oder Hobbyzimmer
• Kind III (13,56 m²) – größtes Kinderzimmer mit viel Stellfläche
• Tageslichtbad (7,58 m²) – mit Dusche, WC und Waschbecken
• Balkon – in Süd-/Westausrichtung, mit Blick in den Garten
Dieses gepflegte Einfamilienhaus in Papenburg Obenende bietet auf rund 165 m² Wohnfläche und acht Zimmern viel Platz für Familien, Homeoffice oder Gäste. Im Erdgeschoss erwarten Sie ein helles Wohnzimmer, ein großes Esszimmer, eine praktisch geschnittene Küche mit Zugang zum Hauswirtschaftsraum, ein Büro/Gästezimmer, ein Gäste-WC sowie weitere Nutzflächen inklusive direktem Zugang zur Garage. Die großen Fenster und die überdachte Terrasse sorgen für ein offenes, freundliches Wohngefühl mit Blick in den gepflegten Garten.
Im Dachgeschoss stehen ein Elternschlafzimmer mit angrenzendem Ankleidezimmer, drei Kinderzimmer, ein modernes Tageslichtbad sowie ein Balkon in Süd-/Westausrichtung zur Verfügung. Alle Räume sind gut geschnitten und bieten viel Stellfläche und Licht.
Dank umfangreicher Modernisierungen – darunter neue Fenster, erneuerte Elektrik, ein modernisiertes Dach, Glasfaser, eine 10 kWp Photovoltaikanlage, 10 kWh Speicher, ein zusätzliches Balkonkraftwerk und die Wärmepumpe (Einbau 12/2025) – ist das Haus energetisch top ausgestattet und bereit für die Zukunft. Eine Garage sowie mehrere Stellplätze runden das Angebot ab.
Ausstattungsmerkmale:
• Zweite Küche im Hauswirtschaftsraum – ideal für Vorräte, Vorbereitung oder Mehrgenerationenhaushalt
• Zweite Küche im Hauswirtschaftsraum – ideal für Vorräte, Vorbereitung oder Mehrgenerationenhaushalt
• Glasfaseranschluss für schnelles Internet
• Wärmepumpe der Marke Wolf, (Einbau Dezember 2025 mit Gewährleistung)
• Photovoltaikanlage 10 kWp mit 10 kWh Speicher (2025)
• Balkonkraftwerk mit 1,4 kWp und 1,6 kWh Speicher
• Dreifach verglaste Kunststofffenster (Einbau 2022)
• Neue Eingangstür von 2023
• Neue Innentüren von 2011
• Elektrische Rollläden an allen Fenstern (2022)
• Elektrische Rollläden im Flur und in der Ankleide
• Neue Dachdämmung (2024), Wärmedämmung mit Wolle
• Massive Betondecke zum Obergeschoss
• Elektrik teilweise erneuert (2022):
- Neue Steckdosen
- Neue Lichtschalter
- Kippschalter-Sicherungssystem
- 3-adrige Verkabelung
• Überdachte Terrasse mit Blick in den Garten
• Balkon in Süd-/Westausrichtung
• Einzelgarage mit direktem Zugang ins Haus und zum Garten
• 2023 Erneuerung elektr. Garagentor
• Mehrere Außenstellplätze
• Heizungsraum mit Waschmaschinen- und Trockneranschluss
• Großer, gepflegter Garten mit viel Privatsphäre
• Modernisierte Bodenbeläge im gesamten Wohnbereich
• Plissees an vielen Fenstern
• Kaminanschluss möglich
Angaben gemäß §§ 79 ff. des GEG:
Baujahr Gebäude 1981, Baujahr Wärmeerzeuger 2010 (12/2025 wird Wärmepumpe eingebaut), Energieträger Gas, Energieverbrauchsausweis, Energiebedarf 61,7 kWh, EEK B.
Dieses Haus begeistert durch seine außergewöhnliche Kombination aus zukunftssicherer Energieeffizienz, großzügigem Platzangebot und hochwertigen Modernisierungen, die in dieser Form nur selten zu finden sind. Die moderne Haustechnik mit Photovoltaikanlage, Batteriespeicher, zusätzlichem Balkonkraftwerk und der neuen Wärmepumpe (Wolf, Einbau 12/2025) sorgt für dauerhaft niedrige Energiekosten und macht die Immobilie besonders attraktiv für Käufer, die Wert auf nachhaltiges Wohnen legen. Gleichzeitig überzeugt das Haus durch seine durchdachte Raumaufteilung, die helle, freundliche Atmosphäre sowie praktische Details wie eine zweite Küche, eine überdachte Terrasse, eine Einzelgarage mit direktem Hauszugang und einen großen, geschützten Garten. Die umfassenden Modernisierungen – von Fenstern, über Elektrik, Dachdämmung bis hin zu den hochwertigen Bodenbelägen – bieten den Komfort eines nahezu bezugsfertigen Zuhauses in einer der gefragtesten Lagen von Papenburg-Obenende. Dieses Gesamtpaket macht die Immobilie zu einer seltenen Gelegenheit für Familien, die ein modernes, effizientes und wertbeständiges Eigenheim suchen.
LAGE
Dieses Einfamilienhaus befindet sich in einer der beliebtesten Wohngegenden Papenburgs – Papenburg Obenende, direkt in attraktiver Kanallage. Die Umgebung ist geprägt von gepflegten Einfamilienhäusern, ruhigen Straßen und der typisch papenburger Wohnkultur entlang der Kanäle, die für ein besonderes Wohnflair sorgen. Spaziergänge am Wasser, kurze Wege zu Grünflächen und die idyllische Atmosphäre machen diese Lage besonders begehrt – ideal für Familien und Menschen, die Erholung direkt vor der Haustür schätzen.
Gleichzeitig bietet die Immobilie eine hervorragende Anbindung: Einkaufsmöglichkeiten, Supermärkte, Ärzte, Apotheken und Schulen sind in wenigen Minuten erreichbar. Kindergärten sowie diverse Freizeitangebote befinden sich ebenfalls in unmittelbarer Nähe. Die Innenstadt von Papenburg sowie der Bahnhof sind schnell erreicht, sodass auch Pendler von der Lage profitieren. Die Kombination aus ruhiger, naturnaher Wohnlage am Kanal und optimaler Infrastruktur macht diese Adresse zu einer der attraktivsten Wohnlagen im Obenende.
SONSTIGES
Für den attraktiven Preis von nur 339.000,00 Euro könnte dieses Haus nach Vereinbarung Ihr neues Domizil werden.
Die Vermittlungsgebühr beträgt 2,98% des Kaufpreises (inklusive 19% Mehrwertsteuer) und wird vom Käufer nach der notariellen Beurkundung entrichtet. Ein identischer Maklervertrag wurde ebenfalls mit dem Verkäufer abgeschlossen.
Sollten Sie Unterstützung bei der Finanzierung benötigen, stelle ich Ihnen gerne einen qualifizierten Berater zur Seite. Weitere Informationen finden Sie auf unserer Partnerseite www.immo-fair-freundlich.de.
Zögern Sie nicht, einen unverbindlichen Besichtigungstermin mit mir zu vereinbaren!
Ihr Ansprechpartner ist Herr Holger Freerks, erreichbar unter der
Telefonnummer 04950 / 98 766 46.
Die interne Anbieter-Objekt-Nummer dieses Angebots lautet: FF 251 WO
Bitte teilen Sie uns bei einer Kontaktaufnahme per E-Mail Ihre Adresse und eine Telefonnummer mit, unter der Sie tagsüber erreichbar sind. Vielen Dank für Ihr Verständnis.
Sie finden weitere attraktive Immobilienangebote auf unserer Webseite www.immo-fair-freundlich.de.
Ihr Ansprechpartner für dieses Objekt:

Holger Freerks
TEL: 04950 - 98 766 46
OBJEKTANFRAGE
Bei Fragen Rund um diese Immobilie, kontaktieren Sie uns. Geben Sie bitte immer die richtige Objekt Nr. an.




